
Estero, Florida
University Highlands
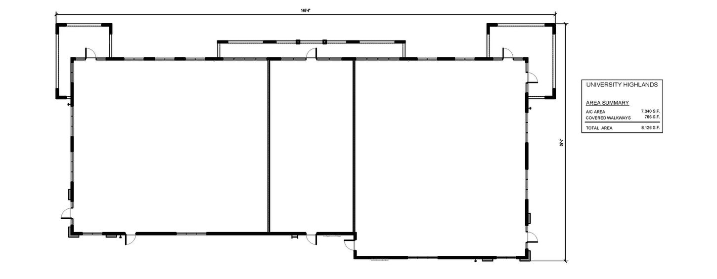
University Highlands is a multi-tenant retail center designed for commercial corridor visibility and flexible leasing. The building includes approximately 7,340 square feet of air-conditioned space with 786 square feet of covered walkways, totaling 8,126 square feet. The architecture features stucco façades, clay tile roof elements, articulated entry towers, and storefront glazing organized into divisible tenant bays. Floor plans allow adaptable configurations supported by coordinated service access, pedestrian circulation, and surface parking integration.
7,340 sq ft A/C space | 8,126 sq ft total including covered walkways
Multi-tenant retail configuration with flexible, divisible lease bays
Prominent storefront glazing for strong commercial corridor visibility
Stucco façades with articulated entry towers & clay tile roof elements
Covered walkways providing shaded pedestrian access
Adaptable floor plan layout to accommodate varied tenant types
Integrated service access & coordinated building systems planning
Surface parking layout designed for efficient circulation & customer convenience

Commercial retail center in Estero, Florida featuring multi-tenant layout, Mediterranean architecture, and integrated parking design by South Florida Architecture.


